¡OPORTUNIDAD ÚNICA!
Casa sólida en terreno amplio de 300 m²
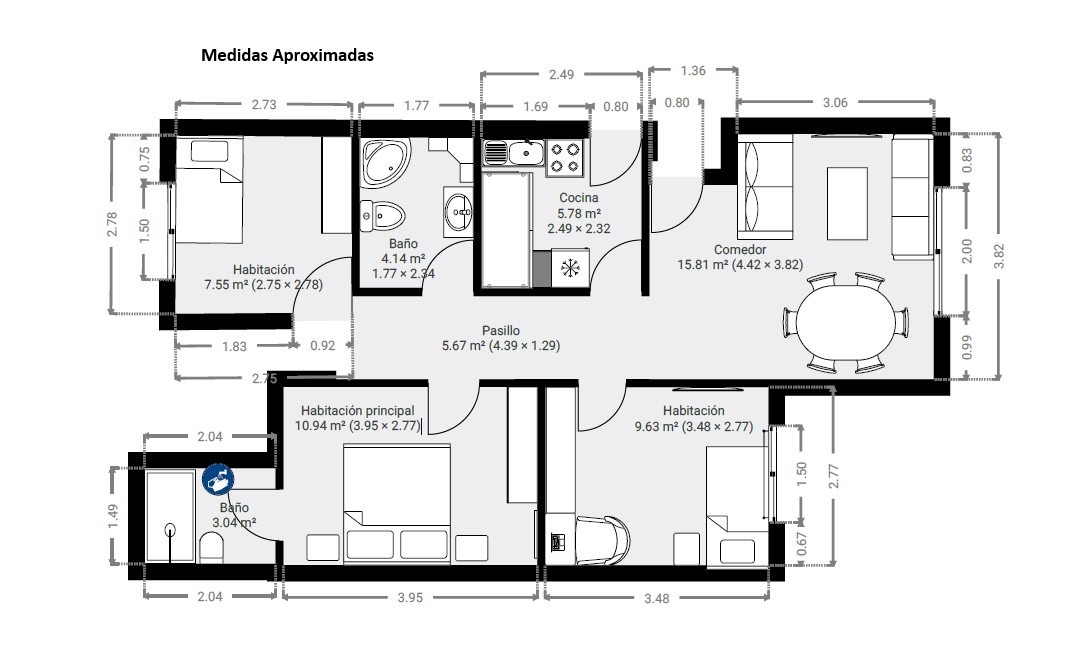
Acogedora casa de un piso con excelente distribución, construida en sólida albañilería sobre amplio terreno de 300 m². Superficie construida de 74,5 m² con gran potencial para ampliación.
Características principales:
3 dormitorios amplios y luminosos
2 baños completos
Amplio comedor de 15,81 m²
Cocina equipada de 5,78 m²
Espacioso patio trasero de 100 m²
2 estacionamientos


Valor 4.900 UF
































Contacto
Tu puerta a casas y departamentos frente al mar
info@playalaherradura.com
WhatSapp +56 9 49827636
© 2025. All rights reserved.
